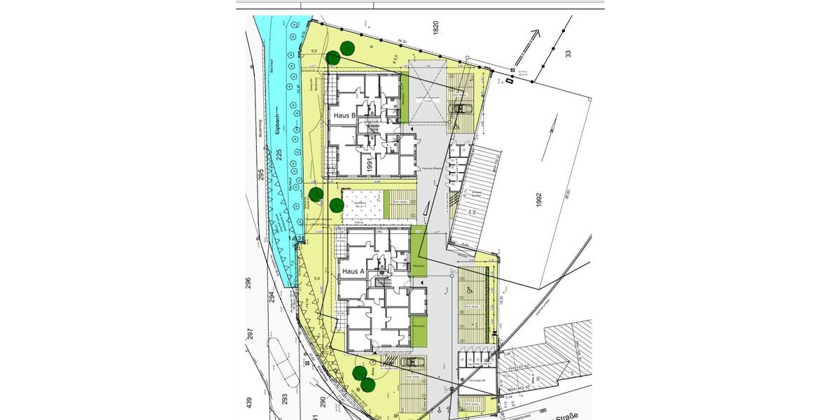
Baugrundstück mit Baugenehmigung für zwei 6 Parteien Häuser in guter Lage bei KölnBonn
Informationen zur Immobilie:
Ort
53783 Eitorf
Objektart
Grundstück
Größe
ca.
299.000 €
Beschreibung:
Mehr zum Angebot Baugrundstück mit Baugenehmigung für zwei 6 Parteien Häuser in guter Lage bei KölnBonn:
Das hier angebotene Grundstück ist aktuell noch mit einer alten Wirtschaft bebaut. Nach Abriss der aktuellen Bebauung können hier zwei 6 Parteienhäuser entstehen. Der Abriss ist im Kaufpreis nicht enthalten... mehr erfahren
Das hier angebotene Grundstück ist aktuell noch mit einer alten Wirtschaft bebaut. Nach Abriss der aktuellen Bebauung können hier zwei 6 Parteienhäuser entstehen. Der Abriss ist im Kaufpreis nicht enthalten... mehr erfahren
weitere Grundstücke